« Powrót
Nowoczesne 2 pokoje – do wprowadzenia
Tylko w HOMELIA Nieruchomości!
LOKALIZACJA:
Kielce, ul Witosa 97, w pobliżu Doliny Silnicy i Zalewu Kieleckiego. Blok nie leży bezpośrednio przy ulicy, a mieszkanie ma okna i balkon na zieleń.
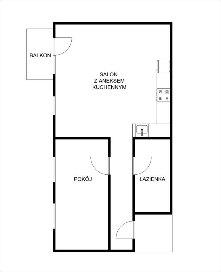
UKŁAD:
- salon z aneksem kuchennym i balkonem
- sypialnia
- łazienka z wc
- przedpokój
Całość ma 49,5 m2. Mieszkanie położone jest na 2 piętrze 3 piętrowego bloku z 2018 roku.
FUNKCJONALNOŚĆ:
Mieszkanie jest sprzedawane umeblowane i wyposażone w sprzęt AGD (lodówka, płyta indukcyjna, piekarnik, zmywarka, pralka). Mieszkanie nie wymaga remontu, można się wprowadzać od zaraz.
CZYNSZ:
Opłaty administracyjne (bez zamieszkujących osób) wynoszą około 150 zł. Mieszkanie ogrzewane jest piecem gazowym, co daje niezależność w doborze komfortowej temperatury i okresu ogrzewania.
DODATKOWE:
Blok jest ogrodzony i przynależy do niego teren na którym urządzono plac zabaw dla dzieci oraz strefę wypoczynkową z altaną i grillem.
CENA:
520.000 zł. Mieszkanie posiada księgę wieczystą, zakup można sfinansować kredytem.
Zapraszam na prezentację mieszkania.
H O M E L I A nieruchomości, ul. 1-go Maja 56 - PAWEŁ PAKUŁA, TEL. 663-003-650, 041/ 3134008.
HOMELIA Nieruchomości to biuro, które jest najchętniej wybierane jako wyłączne biuro sprzedaży-kupna nieruchomości w woj. świętokrzyskim:
– Posiadamy licencje państwowe i ubezpieczenia.
– Dajemy gwarancję bezpieczeństwa sprzedaży i zakupu.
– Więcej UNIKALNYCH ofert TYLKO W NASZYM BIURZE zobaczysz na naszej stronie
– Doradzamy i pomagamy w regulacji stanów prawnych
– Weryfikujemy nieruchomość wybraną przez Ciebie do zakupu
– Zabezpieczamy Twoją transakcję kupna-sprzedaży
– Gwarantujemy bezpieczeństwo i fachowe wsparcie
NASZE ATUTY:
– BRAK DUPLIKOWANYCH OFERT– naszych ofert nie znajdziesz w innych biurach,
– DARMOWE DORADZTWO KREDYTOWE (12 topowych Banków BEZ PROWIZJI)
– oszczędność czas i pieniędzy na nietrafione wybory nieruchomości,
– weryfikację dokumentów NIERUCHOMOŚCI od strony formalno-prawnej,
– jawność dokumentów nieruchomości przed zawarciem umowy u sprawdzonych Notariuszy,
INFORMACJE DOTYCZACE PREZENTACJI I ZAKUPU NIERUCHOMOŚCI:
1. Prezentacja nieruchomości przeprowadzana jest zawsze w obecności Agenta Biura Nieruchomości.
2. Ze względów bezpieczeństwa, osoby biorące udział w prezentacji, zobowiązane są do podania imienia, nazwiska i nr PESEL oraz złożenia podpisu na okazaniu adresowym.
3. Koszty zakupu zgodnie z obowiązującym ustawodawstwem w Polsce:
-taksa notarialna,
-wpisy do księgi wieczystej.
4. Zapewniamy pełną obsługę formalno – prawną, skuteczne uczestnictwo w ustalaniu warunków transakcji.
5. Przygotowujemy niezbędne umowy (przedwstępne, warunkowe), potrzebne do przeprowadzenia bezpiecznej transakcji kupna – sprzedaży.
6. Zapewniamy pomoc współpracującej z nami kancelarii notarialnej.
HOMELIA Nieruchomości, ul. 1-go Maja 56,
TEL. 663 003 650, 041/ 3134008
(obok sklepu meblowego Bodzio przy rondzie IX wieków/Okrzei)
Niniejsze ogłoszenie wraz z jego elementami jest własnością biura (HOMELIA Nieruchomości) lub podmiotu współpracującego. Kopiowanie, rozpowszechnianie oraz korzystanie z niniejszych materiałów w sposób wykraczający poza dozwolony użytek określony przepisami ustawy z 4 lutego 1994 r. o prawie autorskim i prawach pokrewnych (Dz. U. 1994, nr 24 poz. 83 z późn. zm.) bez pisemnej zgody właściciela (HOMELIA Nieruchomości) lub podmiotów współpracujących nie jest dozwolone i może stanowić podstawę odpowiedzialności cywilnej i/lub karnej.
Współpracujemy z doświadczonymi doradcami kredytowymi oferującymi sprawdzenie zdolności kredytowej oraz przedstawienie oferty finansowania nieruchomości.
Przedstawione informacje dotyczące opisu nieruchomości mają charakter wyłącznie informacyjny na podstawie informacji podanych od właściciela i mogą podlegać aktualizacji. Oferta dotycząca nieruchomości nie stanowi oferty określonej w art. 66 i następnych KC.
Nota prawna: Informacje dotyczące opisu nieruchomości podane są przez właściciela, mają charakter wyłącznie informacyjny i mogą podlegać aktualizacji. Oferta dotycząca nieruchomości stanowi zaproszenie do rokowań zgodnie z art. 71 Kodeksu Cywilnego i nie stanowi oferty określonej w art. 66 i następnych KC.
LOKALIZACJA:
Kielce, ul Witosa 97, w pobliżu Doliny Silnicy i Zalewu Kieleckiego. Blok nie leży bezpośrednio przy ulicy, a mieszkanie ma okna i balkon na zieleń.
UKŁAD:
- salon z aneksem kuchennym i balkonem
- sypialnia
- łazienka z wc
- przedpokój
Całość ma 49,5 m2. Mieszkanie położone jest na 2 piętrze 3 piętrowego bloku z 2018 roku.
FUNKCJONALNOŚĆ:
Mieszkanie jest sprzedawane umeblowane i wyposażone w sprzęt AGD (lodówka, płyta indukcyjna, piekarnik, zmywarka, pralka). Mieszkanie nie wymaga remontu, można się wprowadzać od zaraz.
CZYNSZ:
Opłaty administracyjne (bez zamieszkujących osób) wynoszą około 150 zł. Mieszkanie ogrzewane jest piecem gazowym, co daje niezależność w doborze komfortowej temperatury i okresu ogrzewania.
DODATKOWE:
Blok jest ogrodzony i przynależy do niego teren na którym urządzono plac zabaw dla dzieci oraz strefę wypoczynkową z altaną i grillem.
CENA:
520.000 zł. Mieszkanie posiada księgę wieczystą, zakup można sfinansować kredytem.
Zapraszam na prezentację mieszkania.
H O M E L I A nieruchomości, ul. 1-go Maja 56 - PAWEŁ PAKUŁA, TEL. 663-003-650, 041/ 3134008.
HOMELIA Nieruchomości to biuro, które jest najchętniej wybierane jako wyłączne biuro sprzedaży-kupna nieruchomości w woj. świętokrzyskim:
– Posiadamy licencje państwowe i ubezpieczenia.
– Dajemy gwarancję bezpieczeństwa sprzedaży i zakupu.
– Więcej UNIKALNYCH ofert TYLKO W NASZYM BIURZE zobaczysz na naszej stronie
– Doradzamy i pomagamy w regulacji stanów prawnych
– Weryfikujemy nieruchomość wybraną przez Ciebie do zakupu
– Zabezpieczamy Twoją transakcję kupna-sprzedaży
– Gwarantujemy bezpieczeństwo i fachowe wsparcie
NASZE ATUTY:
– BRAK DUPLIKOWANYCH OFERT– naszych ofert nie znajdziesz w innych biurach,
– DARMOWE DORADZTWO KREDYTOWE (12 topowych Banków BEZ PROWIZJI)
– oszczędność czas i pieniędzy na nietrafione wybory nieruchomości,
– weryfikację dokumentów NIERUCHOMOŚCI od strony formalno-prawnej,
– jawność dokumentów nieruchomości przed zawarciem umowy u sprawdzonych Notariuszy,
INFORMACJE DOTYCZACE PREZENTACJI I ZAKUPU NIERUCHOMOŚCI:
1. Prezentacja nieruchomości przeprowadzana jest zawsze w obecności Agenta Biura Nieruchomości.
2. Ze względów bezpieczeństwa, osoby biorące udział w prezentacji, zobowiązane są do podania imienia, nazwiska i nr PESEL oraz złożenia podpisu na okazaniu adresowym.
3. Koszty zakupu zgodnie z obowiązującym ustawodawstwem w Polsce:
-taksa notarialna,
-wpisy do księgi wieczystej.
4. Zapewniamy pełną obsługę formalno – prawną, skuteczne uczestnictwo w ustalaniu warunków transakcji.
5. Przygotowujemy niezbędne umowy (przedwstępne, warunkowe), potrzebne do przeprowadzenia bezpiecznej transakcji kupna – sprzedaży.
6. Zapewniamy pomoc współpracującej z nami kancelarii notarialnej.
HOMELIA Nieruchomości, ul. 1-go Maja 56,
TEL. 663 003 650, 041/ 3134008
(obok sklepu meblowego Bodzio przy rondzie IX wieków/Okrzei)
Niniejsze ogłoszenie wraz z jego elementami jest własnością biura (HOMELIA Nieruchomości) lub podmiotu współpracującego. Kopiowanie, rozpowszechnianie oraz korzystanie z niniejszych materiałów w sposób wykraczający poza dozwolony użytek określony przepisami ustawy z 4 lutego 1994 r. o prawie autorskim i prawach pokrewnych (Dz. U. 1994, nr 24 poz. 83 z późn. zm.) bez pisemnej zgody właściciela (HOMELIA Nieruchomości) lub podmiotów współpracujących nie jest dozwolone i może stanowić podstawę odpowiedzialności cywilnej i/lub karnej.
Współpracujemy z doświadczonymi doradcami kredytowymi oferującymi sprawdzenie zdolności kredytowej oraz przedstawienie oferty finansowania nieruchomości.
Przedstawione informacje dotyczące opisu nieruchomości mają charakter wyłącznie informacyjny na podstawie informacji podanych od właściciela i mogą podlegać aktualizacji. Oferta dotycząca nieruchomości nie stanowi oferty określonej w art. 66 i następnych KC.
Nota prawna: Informacje dotyczące opisu nieruchomości podane są przez właściciela, mają charakter wyłącznie informacyjny i mogą podlegać aktualizacji. Oferta dotycząca nieruchomości stanowi zaproszenie do rokowań zgodnie z art. 71 Kodeksu Cywilnego i nie stanowi oferty określonej w art. 66 i następnych KC.
| Ogólne warunki: | |
|---|---|
| Rynek: | wtórny |
| Cena: | 520000 |
| Powierzchnia: | 49.5 |
| Cena za m2: | 10505.05 |
| Liczba pokoi: | 2 |
| Piętro: | 2 |
| Liczba pięter: | 3 |
| Rok budowy: | 2018 |
| Rodzaj nieruchomości: | mieszkanie |
| Stan nieruchomości: | |
| Opis budynku | |
| Rodzaj budynku: | niski blok |
| Bezpieczeństwo | |
| Garaż: | |
| Elektrycznosć: | |
| Rodzaj podjazdu: | |
Nie znalazłeś tego, czego szukasz?
Kliknij i zobacz podobne oferty
Nie znalazłeś tego, czego szukasz?
Zobacz podobne oferty:















